1 of 4

Außenstellplatz in Alt-Mariendorf – abschließbares Privatgelände, ab sofort! new

12107 Berlin - Tempelhof-Schöneberg Garage / Outside Parking for Rent Listing-ID A7ULGX

Share
€119.00
Cold rent

Managed by:

RE SMART Invest GmbH

Außenstellplatz in Alt-Mariendorf – abschließbares Privatgelände, ab sofort! new

12107 Berlin - Tempelhof-Schöneberg Garage / Outside Parking for Rent Listing-ID A7ULGX

€119.00
Cold Rent
Tags
Outside Parking
Building year 1996
Costs
Cold Rent
€119.00
Buyer commission
No buyers commission is payable.
Deposit
3 Nettokaltmieten
Property Details
Property class
Garage / Outside Parking
Property type
Outside Parking
Building year
1996
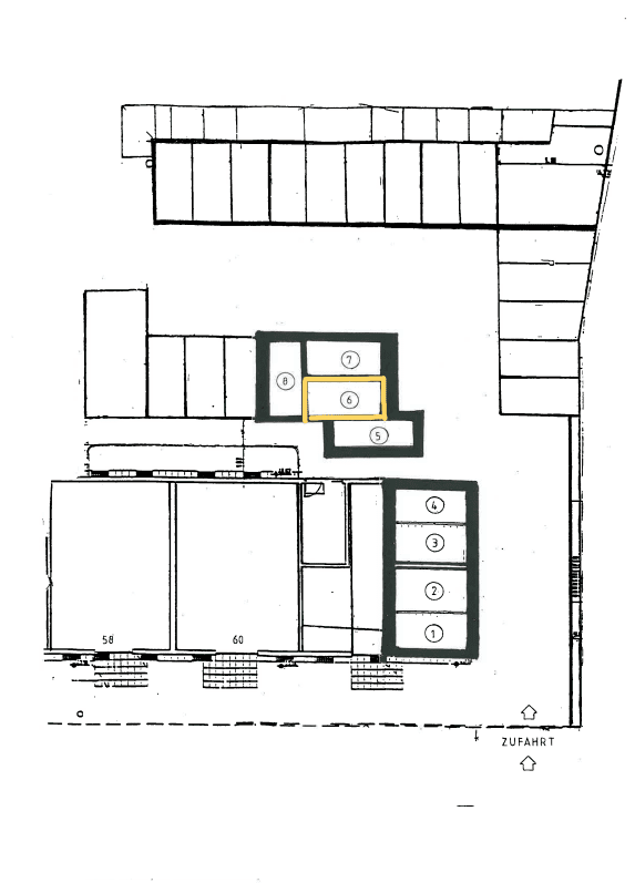
Length
3.84 m
Width
2.29 m
Height
0.0 m
Energy Certificate Details
Heating type
Central heating
Property description

Endlich hat die Parkplatz suche ein Ende!

Der angebotene Außenstellplatz befindet sich auf dem gepflegten und abschließbaren Privatgelände der Alt-Mariendorf 58 in 12107 Berlin. Der Stellplatz bietet eine sichere Abstellmöglichkeit für Ihr Fahrzeug und eignet sich ideal für Anwohner sowie Pendler, die Wert auf Komfort und Schutz legen.

Das Gelände ist nur für Berechtigte zugänglich und sorgt so für ein ruhiges sowie gut überschaubares Umfeld.

Der Stellplatz ist ab sofort verfügbar.

Floor plan
Area

Der Stellplatz liegt im ruhigen und gut angebundenen Ortsteil Alt-Mariendorf im Süden Berlins. Geschäfte des täglichen Bedarfs, Cafés und Dienstleister befinden sich in unmittelbarer Nähe. Die Anbindung an Bus, U-Bahn sowie wichtige Verkehrsachsen ist ausgezeichnet, sodass sowohl die Berliner Innenstadt als auch das Umland schnell erreichbar sind.

About the vendor
RE SMART Invest GmbH +49 (0) 30 - 577 018 203